25 Jahre gewachsen

Begeben Sie sich mit uns auf eine spannende Reise!

Rückblick für Neugierige

Wir nehmen Sie und Euch mit auf eine kleine Zeitreise durch die vergangenen 25 Jahre seit der Gründung des Büros ver.de im Dezember 2000. Wir freuen uns, dass ver.de in dieser Zeit von drei auf 30 Personen gewachsen ist. Über die Jahre konnten wir in zahlreichen Projekten, Wettbewerben und Rahmenplänen Landschaft und Freiflächen zum Positiven verändern. Schauen Sie rein in die übers Jahr wachsende Zeitleiste oder die Posts auf Social-Media. Dort überraschen wir Sie mit kurzen Einblicken aus 25 Jahren: zeitloses Design, moderne Planung, Events aus dem Büroalltag.

Gründung und Namensfindung

Die Idee entstand im Jahr 2000 auf dem Sommerfest eines anderen Büros. Im selbst renovierten Rückgebäude in der Ganzenmüllerstraße 7 in Freising ging Ende 2000 los mit „ver.de landschaftsarchitektur“. Ganz ohne Sekt, einfach rein in die Arbeit für erste Projekte und Wettbewerbe.
Der Büroname entstand in Anlehnung an die Farbe Grün für den Beruf und die Landschaft. verde ist international in vielen Sprachen für Grün gebräuchlich. Und der Punkt im Namen ver.de trägt dem digitalen Trend zum Jahrtausendwechsel Rechnung.

Was ver.de ausmacht

Auf fachlicher Grundlage der Landschaftsarchitektur hohe Qualität abliefern ist das Motto von ver.de. Mit Menschen für Menschen gestalten wir zukunftsfähige Lebensräume. Für ein starkes Team fördern wir vielfältige gemeinsame Aktivitäten sportlicher, kultureller und kulinarischer Art. Die fachliche Qualifikation wird nach den individuellen Interessen jeder/ jedes Einzelnen unterstützt, mit Fortbildungen und Exkursionen. Sehen Sie hier mehr davon!

2017
Rauf in die Berge!
Bild: Pause auf dem Wanderweg, Foto © ver.de

Exkursion nach Innsbruck Ein hohes Ziel Nach Hamburg und Venedig in den Jahren zuvor, hieß es im September 2017 „Innsbruck wir kommen!“. Auf dem Programm standen neben spannenden Projektbesichtigungen auch eine ausgiebige Bergwanderung zur Pfeishütte, an die sich viele von uns sicherlich noch gut erinnern können. Wanderung oder Expedition? Im…Weiterlesen

Verde in Venedig
Venedig-Exkursion ´16,© ver.de

Die große ver.de-Exkursion 2016 in Memes Venedig, wie beeindruckend! 2016 ging die große ver.de-Exkursion nach Venedig/ Italien. Gemeinsam zur dortigen Biennale. In Erinnerung bleiben Bilder vom Canal Grande, Palazzi und Pizza. Gleichermaßen entstanden beeindruckende Erinnerungen an Pavillions, Architekturmodelle und Installationen. Solo con Giotto? Die Exkursion in Memes Wir lassen euch…Weiterlesen

2015
15 Jahre gemeistert
Hamburgexkursion mit Schiffshotel,© ver.de

15 Jahre ver.de Weiter geht´s! Die ersten 15 Jahre ver.de sind gemeistert und es geht spannend und erfolgreich weiter: Wir erhalten den Sonderpreis „Licht im Freiraum“ für das Kemptener Tor -für gelungene Materialwahl und zurückhaltende Gestaltung im historischen Kontext. Das autofreie Wohnquartier „Wohnen am Westpark“ auf dem ehemaligen ADAC-Gelände in…Weiterlesen

2014
Kemptener Tor: Ausgezeichnet!
Bild: Schwebende Bänke mit Fahrradständern unter einem Platanendach, Foto: Johann Hinrichs Photography

Ein Lichtblick! Eine Perle! Skulptural, ästhetisch, atmosphärisch sind Worte, die in den verschiedenen Jury-Beurteilungen mit dem Projekt Kemptener Tor assoziiert werden. Und weil es die Jury beim Baupreis der Stadt Kaufbeuren so schön formuliert hat, wollen wir das hier gerne zitieren: „In Materialwahl und Gestaltung wohltuend zurückhaltend, durch gezielte Setzungen…Weiterlesen

2013
Die Mischung macht´s
Das erste Bild auf Facebook, Foto: ©ver.de

Neue Impulse im Jahr 2013 Große Freisinger Wettbewerbe Bei zwei Wettbewerben in Freising konnten wir uns als ortsansässiges Büro einigermaßen erfolgreich positionieren. Sowohl beim Wettbewerb für das Sport- und Freizeitbad mit brune Architekten aus München als auch beim Wettbewerb zur Neugestaltung der Freisinger Innenstadt durften wir uns über eine Anerkennung…Weiterlesen

2012
Gartenschau Pfaffenhofen
Bild: Wettbewerb Landesgartenschau "Natur in Pfaffenhofen", © ver.de

Der Gartenschauen-Rückblick Gartenschau Pfaffenhofen 2012 – Zweiter Preis Im Jahr 2012 durften wir mit unserem Entwurf für die Gartenschau in Pfaffenhofen a. d. Ilm einen schönen Erfolg feiern: 2. Preis im Wettbewerb – ein bedeutender Meilenstein für unser Team! Schon davor haben wir bei mehreren Gartenschau-Wettbewerben teilgenommen. Auch wenn der…Weiterlesen

2011
Wir wachsen – personell und projektbezogen
Foto: Kulturabend beim Knastbrettl Freising 2011, © ver.de

2011 wachsen wir wieder ein Stück Personell 2011 war unser elftes Jahr als Büro für Landschaftsarchitektur. Neben den drei Partnern gehörten nun drei festangestellte Mitarbeitende und eine freie Mitarbeiterin zum Team. Eine neue Struktur, die mehr Möglichkeiten und Verantwortung mit sich brachte. Projektbezogen Ein zentrales Projekt ist 2011 das Schwabinger…Weiterlesen

2010
10 Jahre – 10 Mitarbeitende
Foto: grüne Torte 2010, © ver.de

10-jähriges Jubiläum Mit grüner Torte feiern Im Jahr 2010 hatte ver.de sein 10-jähriges Jubiläum. Eine grüne Torte durfte da nicht fehlen! Damals bestand ver.de passend zum Jubiläum aus insgesamt 10 Personen, inklusive Werkstudenten und Geschäftsführung. Weitere Erweiterungen Das Büro war 2010 natürlich um einiges kleiner als es später  beim 25-jährigen…Weiterlesen

2009
Wohnen am Westpark
Bild: Entwurf Wohnen am Westpark, Planung: © ver.de

Modell und Kunst für Wohnen am Westpark Zum Jubeln! Nach der ersten Phase im Wettbewerb „Wohnen am Westpark“ blieb es 2009 spannend. Denn drei gleichwertige Preise wurden vom Preisgericht vergeben, mit der Empfehlung an die Ausloberin Eurythos München zur Überarbeitung. Das hieß für ver.de und Jatsch Laux Architekten aus München,…Weiterlesen

2008
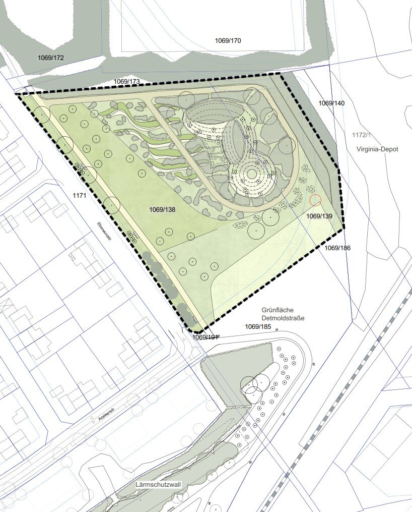
Naturerfahrungsraum Eberwurzstraße
Bild: Naturerfahrungsraum Detmoldstraße, Plan: ver.de

Naturerfahrungsraum Eberwurzstraße, München Klein, aber oho Sicherlich nicht eines der größten, spektakulärsten oder bekanntesten Projekte in der Bürogeschichte, aber manchmal kann man auch mit bescheidenem Aufwand viel erreichen. So geschehen im Falle des Naturerfahrungsraums an der Eberwurzstraße, der 2008 zusammen mit dem öffentlichen Grünzug an der Detmoldstraße in München errichtet…Weiterlesen

2007
Unser Vermieter Erhard Schranner
Foto: Das Duo Vermieter und Teamassistenz, © ver.de

Von Anfang an einen guten Draht Christinas Einsatzfreude Mit zunehmender Mitarbeiterzahl im Team drängte es ver.de nach größeren Büroräumen. Die Einsatzfreude von Christina Wenk hatte sich schon bei der ersten Standortsuche bewährt, also hat sie auch hier die Sache in die Hand genommen. Die Räume am Rindermarkt fand sie als…Weiterlesen

2006
Rückblick von Maike Neuendorff
Bild: Aufdrucke für die Obstkisten im Gefilde, © ver.de

Rückblick von Maike Neuendorff, der ersten fest Angestellten bei ver.de Meine Zeit bei ver.de liegt inzwischen schon ganz schön weit zurück … Ich war ab Mitte 2005 die erste festangestellte Mitarbeiterin und als ich anfing, war das Büro noch im kleinen Gartenhäuschen in der Ganzenmüllerstraße 7 beheimatet. Für mich war…Weiterlesen

2005
Angerpalais München
Fotos: Angerpalais München im Vorher-Nachher-Vergleich, ©ver.de

Innenhof der ehemaligen Gaswerke München Die denkmalgeschützten ehemaligen Gaswerke der Stadtwerke München wurden in der Zeit von 2005 – 2009 als hochwertige Büroeinheiten grundlegend saniert und umgebaut. Dazu passend gestaltete ver.de den Innenhof mit hochwertigen Materialien. Von den angrenzenden Büros und Besprechungszimmern öffnet sich der Blick in den repräsentativ gestalteten…Weiterlesen

2004
Elefantensiedlung
Foto: Elefantensiedlung Neu-Ulm, Elefantenplatz, © NUWOG

Elefantensiedlung, Neu-Ulm Im Jahr 2004 erfolgte ein weiterer großer Erfolg: Im eingeladenen Gutachterverfahren der Wohnungsgesellschaft der Stadt Neu-Ulm wurde der Vorschlag von ver.de und Straub Tacke Architekten aus München zur Realisierung ausgewählt! Bild: Elefantensiedlung Neu-Ulm, Plan © ver.de Die Idee Idee des Entwurfes war, in der…Weiterlesen

2003
Interview mit Felix Metzler
Foto: Felix Metzler, © toponauten

Interview mit Felix Metzler, dem ersten Werkstudenten bei ver.de Wie entstand dein erster Kontakt zu ver.de? Ich glaube, der erste Kontakt kam über die Uni zustande. Jochen war damals Korrekturassistent bei Professor Christoph Valentien, und so habe ich ihn kennengelernt. Später gab es eine Stellenausschreibung – ich habe mich beworben,…Weiterlesen

Landesanstalt für Landwirtschaft in Freising
Foto: Freising LfL Treppe zum oberen Mehrzweckgebäude © ver.de

Freianlagen der Bayerischen Landesanstalt für Landwirtschaft, Freising Erweiterung des Mehrzweckgebäudes Die Bayerische Landesanstalt für Landwirtschaft realisierte mit diesem Projekt die Erweiterung des bestehenden Mehrzweckgebäudes IV auf dem Campus der TU München Weihenstephan. Das Vorhaben markiert das erste Projekt von ver.de in der Heimatstadt Freising und liegt am westlichen Rand der…Weiterlesen

2002
Interview mit Johannes Böttger
Wettbewerbsplan aus dem Jahr 2002 "Im Gefilde", c) ver.de

Interview mit Johannes Böttger, dem ersten Mitarbeiter bei ver.de Wie ist damals die Zusammenarbeit mit ver.de entstanden? Wir haben uns in meiner Unizeit kennengelernt, als Birgit wissenschaftliche Mitarbeiterin war und ich studentische Hilfskraft. Der Studiengang war damals nicht so groß, daher kannte man sich schnell persönlich und so kam es…Weiterlesen

Grünzug im Gefilde
Bild: 2002, Skatepark im Gefilde mit Flutlichtanlage, Foto: ver.de landschaftsarchitektur

Der erste Wettbewerbsgewinn! Das Projekt: „Im Gefilde“ begleitet uns seit dem Jahr 2002 bis heute. Vor über 20 Jahren haben wir dort von 2002-2007 die Parkgestaltung im Zuge eines Realisierungswettbewerbs, sowie die anschließende Planung übernommen. Im Jahre 2012 folgte die Fertigstellung des 2. Bauabschnittes in Form der Skateanlage und den…Weiterlesen

2001
Hof Wiener Platz
Bild: Jahreszeiten-Impressionen vom Hof Wiener Platz,© ver.de

Das erste Projekt! Mit der Umgestaltung des Hofes am Wiener Platz in München nimmt das erste Projekt Gestalt an. Im Jahr 2001 begann das Projekt Hof Wiener Platz in München. Gemeinsam mit Landschaftsarchitektin Brigitte Golling und Maier Neuberger Architekten GmbH. An den einst baumlosen und asphaltierten Hof am Wiener Platz…Weiterlesen

2000
Los geht´s!
Bild: Bürologo (L) zum 25. Jubiläum von ver.de, © ver.de

Dezember 2000 Birgit Kröniger, Jochen Rümpelein und Robert Wenk gründen das Büro ver.de landschaftsarchitektur im Dezember 2000. Das Büro befindet sich in der Ganzenmüllerstraße 7 in Freising. Auf ein paar Quadratmetern, umgeben vom grünen Garten, entstehen die ersten Ideen. Ab jetzt kann ver.de wachsen!

« zurück zur…Weiterlesen

 

 

An dieser Stelle beginnt die Reise – kommen Sie mit uns mit!